首页 新房 二手房 租房 资讯 社区 房产全景 楼市活动 精彩推荐
首页 > 资讯 > 最新快讯

用微信扫描二维码

分享至好友和朋友圈

x

全中国最便宜最顶级豪宅之一泰禾.文一合肥院子均价1.4万不到

2018-09-21 10:04 来源:融房网 点击:

今天的合肥楼市,网红神盘必定属于合肥院子,对,就是号称合肥顶级豪宅之一的泰禾.文一合肥院子。
 
合肥的楼市圈,今天一整天被这个神盘刷屏。
 
”紧急通知,
 
因双节将至,新推特价房源!!!
 
庐阳区洋房,卖价低于楼面价!
 
143-155平,现在均价1.4万不到
 
之前2.2万,楼面价都要1.6万
 
全合肥唯一亏本打广告的开发商
 
全合肥高端的物业
 
全合肥最好的环境
 
全合肥最高端楼盘
 
一套房子优惠 80万 啊,要打架的节奏[惊讶][惊讶]”
 
作为合肥的顶级豪宅之一,之前一直低调行事的合肥院子,这是怎么了?为什么大特价?宣传的低价是真是假?都有些什么条件?本着眼见为实的精神,本博主第一时间现场一探究竟。
 
沿着合淮快速路,很畅快的到了售楼部。
 
偌大的售楼部门前停车场及辅道停满了车子。我只好把车子停到边上的加油站。
 
加油站小哥出来招呼我:”这里不能停车,今天怎么啦?都把车停我们加油站。”
 
”小师傅别急,一会走的时候在你们家这边加油。体谅一下啊。”
 
全中国最便宜最顶级豪宅之一泰禾.文一合肥院子均价1.4万不到

全中国最便宜最顶级豪宅之一泰禾.文一合肥院子均价1.4万不到
 
新中式的大门很气派,三进三庭院。
 
现在我们文化自信,新中式建筑风格很流行。即便本博主见多识广,心里面也对这个售楼处赞叹不已。
 
传闻光这售楼处,就花了8000万。

全中国最便宜最顶级豪宅之一泰禾.文一合肥院子均价1.4万不到

全中国最便宜最顶级豪宅之一泰禾.文一合肥院子均价1.4万不到

全中国最便宜最顶级豪宅之一泰禾.文一合肥院子均价1.4万不到

全中国最便宜最顶级豪宅之一泰禾.文一合肥院子均价1.4万不到
 
今天是特卖的第一天,售楼处客户络绎不绝。各路分销及小蜜蜂来回穿梭。

全中国最便宜最顶级豪宅之一泰禾.文一合肥院子均价1.4万不到

全中国最便宜最顶级豪宅之一泰禾.文一合肥院子均价1.4万不到
 
在到访登记表签字之后,销售小哥把我当做土豪,热情服务。
 
先领到影视厅,大屏幕放着合肥院子的规划以设计理念,果然,一看就被洗脑了,我动心了。

全中国最便宜最顶级豪宅之一泰禾.文一合肥院子均价1.4万不到
 
销售小哥在热情的给我讲解:关于泰禾历史,院子系列,以及合肥院子。
 
全中国最便宜最顶级豪宅之一泰禾.文一合肥院子均价1.4万不到

全中国最便宜最顶级豪宅之一泰禾.文一合肥院子均价1.4万不到
 
我抽空拍了一下区位图以及沙盘。

全中国最便宜最顶级豪宅之一泰禾.文一合肥院子均价1.4万不到

全中国最便宜最顶级豪宅之一泰禾.文一合肥院子均价1.4万不到

全中国最便宜最顶级豪宅之一泰禾.文一合肥院子均价1.4万不到

全中国最便宜最顶级豪宅之一泰禾.文一合肥院子均价1.4万不到

全中国最便宜最顶级豪宅之一泰禾.文一合肥院子均价1.4万不到
 
墙上还挂着销售备案价格。这个一定要看。

全中国最便宜最顶级豪宅之一泰禾.文一合肥院子均价1.4万不到
 
没错,11层的洋房户型小高层,正常楼层价格在2万出头。
 
我又搜了一下安居客的数据。

全中国最便宜最顶级豪宅之一泰禾.文一合肥院子均价1.4万不到
 
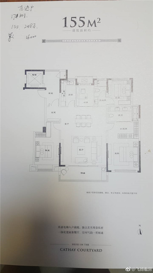
了解了一下户型。户型主要为155平和143平两个面积,虽是两个面积,却是同一户型,放大版和缩小版而已,户型挺好,户型综合评分满分100分,在90分以上。

全中国最便宜最顶级豪宅之一泰禾.文一合肥院子均价1.4万不到
 
之后,当然是实地参观样板房。
 
在去样板房的路上,看到的项目部份实景。

全中国最便宜最顶级豪宅之一泰禾.文一合肥院子均价1.4万不到

全中国最便宜最顶级豪宅之一泰禾.文一合肥院子均价1.4万不到

全中国最便宜最顶级豪宅之一泰禾.文一合肥院子均价1.4万不到

全中国最便宜最顶级豪宅之一泰禾.文一合肥院子均价1.4万不到
 
参观样板房时,我拍摄了一段短视频。
 
大家可以往前翻上一条。
 
看到这里,很多同学已经憋不住了吧。
 
好,重点的重点的重点来了!!!
 
经现场了解及向销售小哥再三求证。
 
一:特卖是真的,时间为9月20号到月底。
 
二:本次特卖的产品为2栋洋房,即15号栋和17号栋。15栋为洋房户型的小高层,面积143,两个单元,一个单元是九层,一个单元11层。17栋为6层的小洋房。这么算下来,本次推出的套数应该是60多套。
 
三:15号栋小高层,除去一二楼和顶楼, 正常楼层的价格为15000元/平。17号栋六层洋房,正常楼层的价格为16000元/平。
 
我让销售找看的15号栋401东边户,一口价212万。17号栋301东边户,一口价248万。
 
ps:东边户最贵,比中间户贵10万。
 
全中国最便宜最顶级豪宅之一泰禾.文一合肥院子均价1.4万不到

全中国最便宜最顶级豪宅之一泰禾.文一合肥院子均价1.4万不到
 
四、付款方式必须为一次性付款。即签约后三天内一次性付款。不支持按揭,不支持分期。
 
五、目前其他楼栋,其他产品不在优惠范围内。
 
六、针对原已购客户,开发商给出的方案是退房撤网签,之后按客户意愿,或退房或按现购买政策重新办理购买手续。(此一再向销售求证)
 
此次探访,主要为落实特价销售是虚是实及相关政策。其他非紧要事项不在这里详述。
 
走出售楼部的时候,我意外的邂逅了那两只萌猫,准确的讲是三只。
 
这是不知名的网友所拍萌猫在接客。

全中国最便宜最顶级豪宅之一泰禾.文一合肥院子均价1.4万不到
 
我邂逅他们时,在偷懒玩耍。

全中国最便宜最顶级豪宅之一泰禾.文一合肥院子均价1.4万不到

房产资讯

·三盛璞悦湾 | 中轴正席 央景楼王 为圈层... ·三盛地产:业绩“大爆发” 与城市共担当... ·总价45万起抢奥体中路CLD核芯铺 ·谁在定义真正的鼎豪?章丘心,三盛·璞... ·实力王炸|三盛·璞悦府臻稀院子,凭什么... ·御临天下河为贵 | 金科·御临河案名正式... ·一条旅游路,一城豪宅史!奥体旅游路南... ·海信地产品质再进阶!1.6低密洋房,区域... ·重塑城市标准|于传奇公馆之上,演绎“万...

楼盘推荐

房德科创·材料科学城元/㎡章丘区 唐冶院士谷15000元/㎡历城区 璟樾12500元/㎡历城区 三盛璞悦府10000元/㎡章丘区 舜山府30000元/㎡高新区 海信·君和25000元/㎡历下区 招商·滨河府待定元/㎡历下区 金茂府御嶺墅待定元/㎡历城区 贵和秀街元/㎡历下区

每日成交

用途销售数量销售面积(㎡) 住宅23429401.59 储藏室(地下室)971435.26 办公11921.07 商业用房111065.2 车库7263.79 其他41744.71 厂房00 公寓00

友情链接

  • 大众家园网
  • 浪漫网
  • 买房网
  • 安家爱房网
  • 日照装修
  • 咸阳房地产
  • 青白江房产
  • 临沂房产新闻
  • 房虫网
  • 融房网
  • 第一时间房源
  • 景德镇房产网
  • 湖州0572房产网
  • 济南房产