首页 新房 二手房 租房 资讯 社区 房产全景 楼市活动 精彩推荐
首页 > 资讯 > 最新快讯

用微信扫描二维码

分享至好友和朋友圈

x

换开发商、改配等操作不断,济南阳光城檀越何时能入市?

2020-11-03 14:27 来源:界面山东 点击:

近年来,济南楼市呈下行趋势,已经是不争的事实。在当前楼市下行的买方市场环境下,大部分购房者选择持币观望,小部分真正有购房需求的购房者则是对开发商品质、项目地段等因素吹毛求疵。此时,有一部分位置特殊的地段则逐渐开始呈现其价值,它们有的或地处城郊但价格低廉,适合真正的刚需购房者入手;有的地段优越、配套齐全,具有真正的竞争优势——济南CBD北正是这样一个区域。随着济南CBD区域的开发和在售项目逐渐进入尾声,临近CBD北部的盛福片区等区域逐渐迎来了春天。此处临近济南配套、规划等最完善的区域,目前汇集了海信君和、金地华著、济高珑悦府等一大批在售改善项目汇集于此。
 
盛福片区利好释放引在济众房企争相拿地
 
临近济南CBD片区,同时又是历下区难得的拥有大片待开发土地的区域,盛福片区很早就进入了在济众房企的视线。
 
2016年11月1日,中垠地产以96296万元的总价竞得高新区徐家旧改项目1宗住宅,经过266轮竞价,地块最终成交楼面价为12403元/平,即现在的中垠御苑。此次土拍因围观人数太多导致系统崩溃,被迫中止改为第二天成交,最终溢价率高达264.86%,也正式拉开了盛福片区的土拍序幕。
 
2018年6月份,济南中央商务区、盛福片区有9宗土地一并捆绑出让,其中包括2宗住宅用地,其他为商务金融用地。CBD捆绑盛福的地块底价成交,拿地企业为历下控股,盛福地块楼面价约为10500元/㎡,由绿城代建,也就是现在的绿城济南蘭园。
 
2019年5月17日,盛福片区原德锡科技地块土拍引来了多家房企的激烈竞争。经65轮竞价后,5家房企都给出了最高报价,最终阳光城联合鑫苑以112296万元加竞配安置房面积10758平的条件竞得该地块,除去安置房面积的成本,该地块楼面价为14401.45元/平,溢价率37.14%。
 
2019年6月27日,盛福片区众合地块被海信摘得,楼面价为11572元/平,另外需要配建面积为9700平的安置房,综合拿地楼面价约13000元/平;同一天,黄台煤气炉厂地块被金地摘得,楼面价约12326元/平。另外,区域内还有高新智慧谷置业拿地楼面价10900元/平。
 
当时各地块土拍时纷纷产生溢价的现象,进一步体现了该区域的热度,同时,高地价和项目分布的相对集中也为如今区域内日渐焦灼的竞争环境埋下了伏笔。
 
区域内各项目的抓紧抢收与阳光城檀越的一路艰辛
 
面对可预见的未来竞争态势,盛福片区内各项目拿地后便加紧了开发的节奏,以图抢先竞争对手一步占据更多的地缘购房客群资源。
 
2020年4月11日,金地华著首开142套房源,当日去化127套,均价20300-21500元/㎡;2020年10月1日,海信君和项目首开,均价21500元/㎡;2020年10月18日,济高珑悦府首开,均价21000-23000元/㎡,整体去化良好......整个盛福片区年后陷入空前的“抢客户”大战中。
 
而相反,相对拿地时间较早的阳光城檀越项目,表现的却格外“淡定”。自2019年5月17日与鑫苑联合拿地后,联合拿地后不久,鑫苑便退出,由阳光城单独开发檀越项目,2019年3季度该项目就已经开始了项目前期宣传,但随后该项目便陷入了长时间的停顿中,甚至市面上一度流传出项目转手、开发商退地等不利传闻。
 
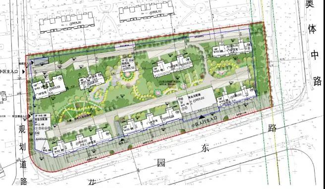
2020年4月28日,阳光城檀越项目工程规划调整。相较于之前公示的规划信息,调整后的工程规划将之前17-23层的层高全部调整为18层,各楼栋的排布也进行了相应的调整。

换开发商、改配等操作不断,济南阳光城檀越何时能入市?
阳光城檀越调整后规划图  图片来源:济南市自然资源和规划局网站

换开发商、改配等操作不断,济南阳光城檀越何时能入市?
阳光城檀越调整前规划图  图片来源:济南市自然资源和规划局网站
 
从开发宣传快人一步到调整规划再到入市姗姗来迟,阳光城檀越未来即将面对的市场已然不容乐观。一方面,自身产品与周边金地华著等项目竞品同质化太强,由于入市时间交完,在周边竞品项目瓜分过一波地缘性客户后,留给阳光城项目的已然所剩无几;另一方面,高地价及众多安置房配建导致该项目开发成本远高于周边竞品项目,在当下盛行的“价格为王”的区域市场中,将处于尴尬境地。
 
近日,阳光城檀越项目终于传出售楼处即将开放的消息了,但鉴于其空空如也的工地,该项目入市时间仍是未知。

房产资讯

·三盛璞悦湾 | 中轴正席 央景楼王 为圈层... ·三盛地产:业绩“大爆发” 与城市共担当... ·总价45万起抢奥体中路CLD核芯铺 ·谁在定义真正的鼎豪?章丘心,三盛·璞... ·实力王炸|三盛·璞悦府臻稀院子,凭什么... ·御临天下河为贵 | 金科·御临河案名正式... ·一条旅游路,一城豪宅史!奥体旅游路南... ·海信地产品质再进阶!1.6低密洋房,区域... ·重塑城市标准|于传奇公馆之上,演绎“万...

楼盘推荐

房德科创·材料科学城元/㎡章丘区 唐冶院士谷15000元/㎡历城区 璟樾12500元/㎡历城区 三盛璞悦府10000元/㎡章丘区 舜山府30000元/㎡高新区 海信·君和25000元/㎡历下区 招商·滨河府待定元/㎡历下区 金茂府御嶺墅待定元/㎡历城区 贵和秀街元/㎡历下区

每日成交

用途销售数量销售面积(㎡) 住宅23429401.59 储藏室(地下室)971435.26 办公11921.07 商业用房111065.2 车库7263.79 其他41744.71 厂房00 公寓00

友情链接

  • 大众家园网
  • 浪漫网
  • 买房网
  • 安家爱房网
  • 日照装修
  • 咸阳房地产
  • 青白江房产
  • 临沂房产新闻
  • 房虫网
  • 融房网
  • 第一时间房源
  • 景德镇房产网
  • 湖州0572房产网
  • 济南房产